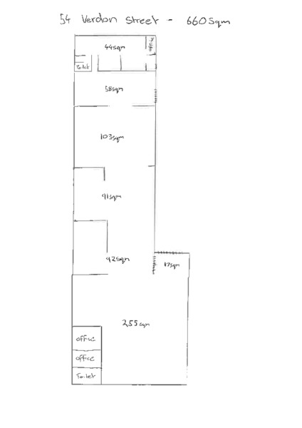
Large 1960m2 allotment. Zoning Commercial.
This high exposure commercial site comes complete with 660sqm of usable warehouse space. This commercial premises has Raglan Parade frontage with access off Verdon street and offers an excellent re-development opportunity (STCA). Contact the office for more information












