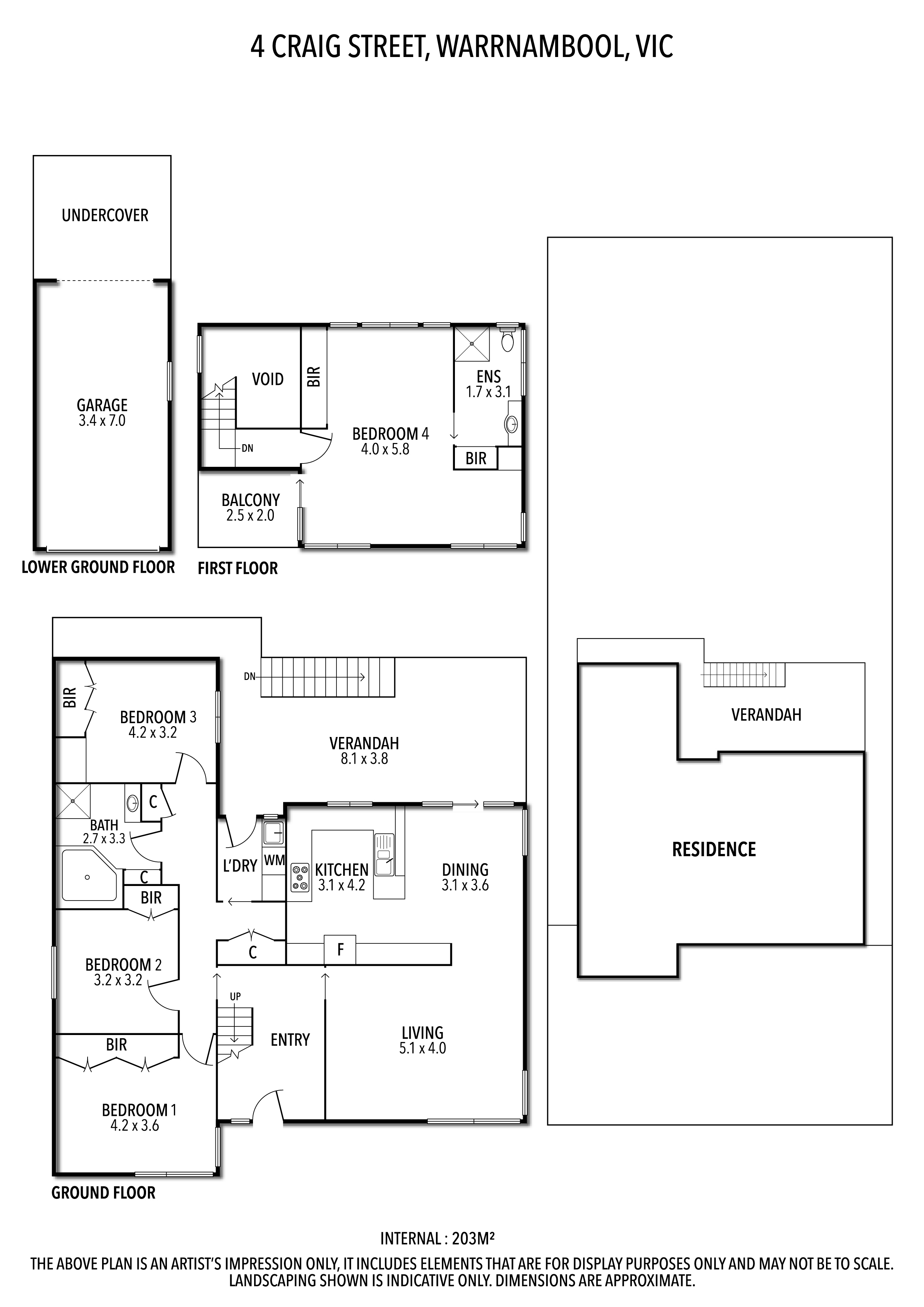
This central home is located in a great location close to schools, Fletcher Jones and the CBD. The bottom floor comprises of good sized living area with split system, open plan kitchen/dining area which leads out onto the impressive rear balcony with glimpses of the ocean. 3 bedrooms all with built in robes and main bathroom with separate shower and corner bath. Upstairs is dedicated to the spacious main bedroom and ensuite. The main bedroom is large enough to also accommodate a sofa or desk - the complete retreat. Central heating throughout. Fully enclosed rear yard contains fruit orchard with grapefruits, lemons, apricots and pear trees to name a few all within easy picking.
*Inspections will ONLY be arranged once an application form has been received and pre-approved. To apply for this property, please go to www.tenantoptions.com.au*
Features
- Air Conditioning
- Ducted Heating
- Split-System Air Conditioning
- Split-System Heating
- Balcony
- Deck
- Fully Fenced
- Remote Garage
- Secure Parking
- Built-in Wardrobes
- Dishwasher












