Two Minute Walk to the CBD
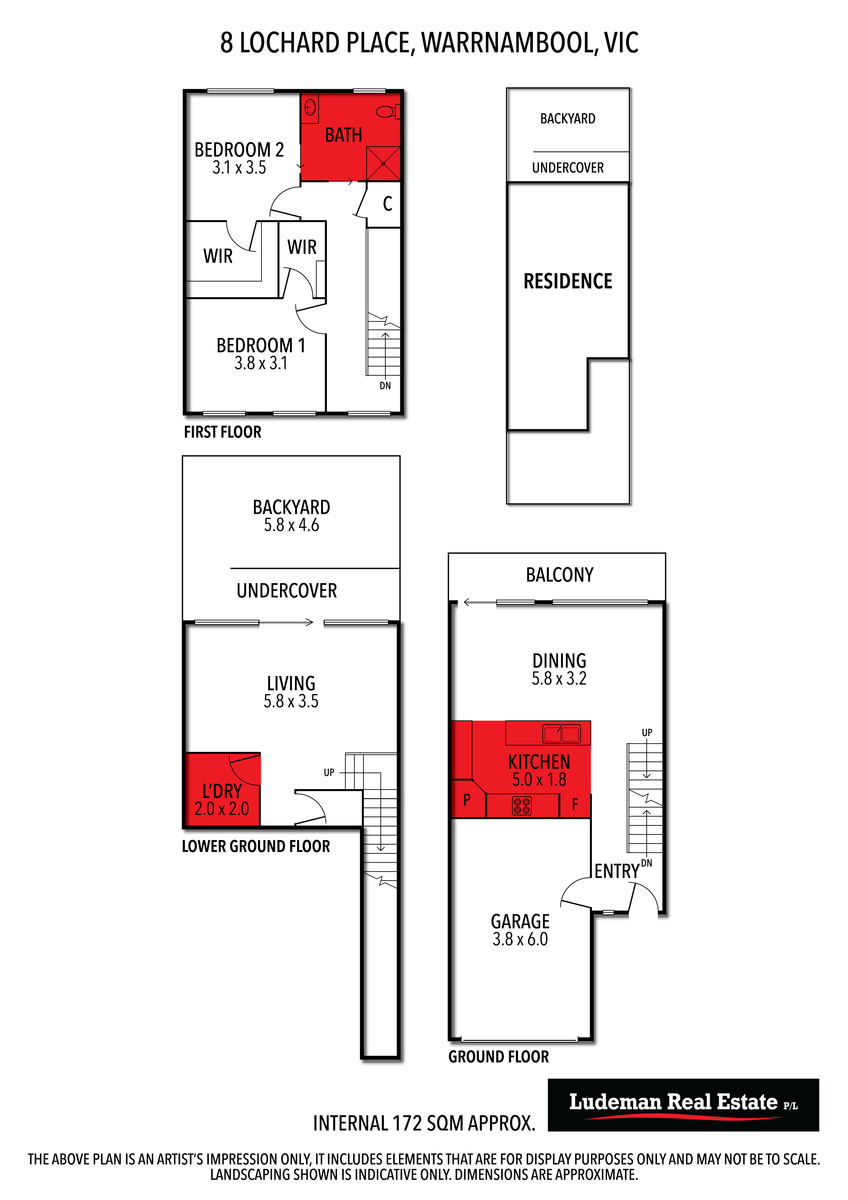
This property features a two-bedroom brick veneer built over three levels and all on its own tittle, both bedrooms with BIRs, semi-ensuite bathroom with bath, separate shower recess and vanity, open plan kitchen and family/dining room with balcony facing north, quality stainless steel cooking facilities, d/w, large living room with direct access to paved rear yard. Two split systems. L/U garage with direct access to entry.
The position of this townhouse is everything with easy walking access to the CBD and Main Beach, combine this with the great condition and a secure long-term tenant if you’re looking to add to your portfolio.
Inspections will impress. Contact now to discuss viewing times.
Features
- Air Conditioning
- Balcony
- Courtyard
- Fully Fenced
- Remote Garage
- Secure Parking
- Broadband Internet Available
- Built-in Wardrobes
- Dishwasher











